Hareket Eğitim Merkezi Kroki Çizimi ve Rölöve Hizmetleri

yalova merkez hareket egitim merkezi spor salonu kroki cizimi ve rolove mst mimarlik
Spacious gym filled with modern exercise machines and a green training track.

Modern işletmecilik anlayışında, bir mekanın fiziksel sınırlarının doğru belirlenmesi ve teknik standartlara uygun şekilde belgelenmesi, hem yasal süreçler hem de operasyonel verimlilik için kritik bir adımdır. MST Mimarlık & İnşaat Ltd.Şti. olarak, Yalova ve Kocaeli başta olmak üzere tüm Türkiye genelinde hareket eğitim merkezleri, spor kompleksleri ve sağlık kuruluşları için profesyonel kroki çizimi ve rölöve hizmetleri sunuyoruz.

Rölöve ve Kroki Nedir? Neden Gereklidir?

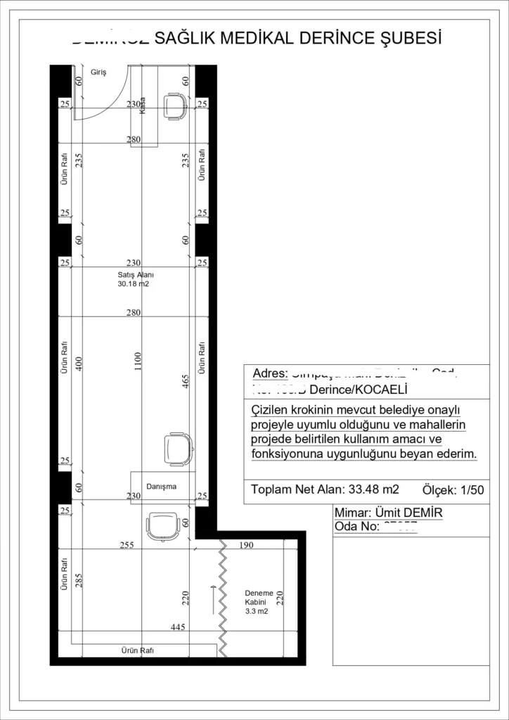
Rölöve: Mevcut bir yapının, binanın veya mekanın tüm boyutlarının yerinde ölçülerek teknik resim kurallarına göre dijital ortama (CAD yazılımları) aktarılması işlemidir. Yapının o anki gerçek durumunu yansıtan en güvenilir belgedir.

Kroki: Bir yerin kuşbakışı görünüşünün, mekanlar arası ilişkileri ve kullanım amacını gösterecek şekilde çizilmesidir. Özellikle ruhsatlandırma ve yerleşim planı süreçlerinde temel belge niteliği taşır.

Hareket eğitim merkezi, kreş, gündüz bakımevi veya özel öğretim kurumu açılışlarında bu belgeler; Milli Eğitim Bakanlığı (MEB), Aile ve Sosyal Hizmetler Bakanlığı veya ilgili belediyeler tarafından talep edilen zorunlu evraklar arasındadır. Yangın yönetmeliğine uygunluk, yerleşim planının kapasite raporuyla örtüşmesi ve mekanın fonksiyonel ayrımı bu çizimler üzerinden denetlenir.

Yönetmelik Standartları ve Teknik Detaylar

Hareket eğitim merkezleri gibi çocuklara ve fiziksel aktiviteye yönelik alanlarda çizimlerin belirli standartları karşılaması şarttır:

  • Kapasite Belirleme: Mekanın net kullanım alanları üzerinden kaç öğrenciye veya danışana hizmet verebileceği bu rölöve çalışmalarıyla netleşir.

  • Güvenlik ve Tahliye: Acil çıkış kapıları, yangın kaçış yolları ve ıslak hacimlerin konumu yönetmeliklere uygun şekilde işaretlenmelidir.

  • Engelli Erişimi: Giriş çıkışlar, rampa eğimleri ve tuvaletlerin engelli erişilebilirliği standartlarına uygunluğu rölöve üzerinde gösterilmelidir.

Sektör Fark Etmeksizin Teknik Çözümler

Hizmet ağımız sadece hareket eğitim merkezleriyle sınırlı değildir. Bugüne kadar çok sayıda farklı sektör için teknik çizim ve onay süreçlerini yönettik:

Spor ve Eğitim Kuruluşları

  • Fitness, Crossfit ve Antrenman Salonları

  • Pilates, Yoga ve Zumba Stüdyoları

  • Dans Okulları, Sanat Akademileri ve Kişisel Gelişim Kursları

Sağlık ve Danışmanlık Merkezleri

  • Eczane ve Optik Dükkanları (İl Sağlık Müdürlüğü standartlarında)

  • Diyetisyen Klinikleri ve Psikolog Ofisleri

  • Fizyoterapi ve Rehabilitasyon Merkezleri

  • Veteriner Klinikleri ve Muayenehaneler

Ticari ve Endüstriyel Mekanlar

  • Fabrika Yenileme, Bölümleme ve Yerleşim Projeleri

  • Ofis, Restoran ve Perakende Mağaza Tasarımları

Türkiye’nin neresinde olursanız olun, mekanınızın teknik altyapısını (rölöve ve kroki) profesyonelce hazırlarken, ihtiyaç duymanız halinde dijital dünyadaki yüzünü (3D render ve görselleştirme) de en modern çizgilerle oluşturuyoruz.

Profesyonel Destek İçin Bizimle İletişime Geçin

Resmi kurum açılış süreçlerinizde, tadilat öncesi mevcut durum tespitinde veya ruhsat yenileme işlemlerinizde profesyonel mimari desteğe ihtiyaç duyuyorsanız MST Mimarlık & İnşaat Ltd.Şti. yanınızda. Tüm Türkiye’ye posta yoluyla ıslak imza, mühürlü gönderim sağlıyoruz.

Detaylı Bilgi ve Teklif İçin;

  • Telefon: +90 531 082 64 00

  • E-Posta: info@mstmimarlikinsaat.com

  • Instagram: @mst.mimarlik.insaat

ozel saglik hizmet birimi diyetisyen krokisi nilufer bursa mst mimarlik
kocaeli derince saglik medikal kroki cizimi mst mimarlik
izmir klinik psikolog ofisi kroki ve plan cizimi mst mimarlik