Kocaeli Kroki Çizimi | Ruhsata Uygun Kroki ve Plan Hizmetleri
Türkiye genelinde resmi kurumlara sunulacak ruhsata esas kroki ve plan çizimleri, mevzuata uygun teknik içerik ve doğru formatta hazırlanmalıdır. Belediyeler, İl Sağlık Müdürlüğü, İl Milli Eğitim Müdürlüğü ve diğer kamu kurumları; başvuru sürecinde eksiksiz, ölçülendirilmiş, kullanım alanları belirtilmiş ve ilgili yönetmeliklere uygun kroki talep eder. MST Mimarlık & İnşaat Ltd. Şti. olarak Kocaeli merkezli; sağlık yapıları, eğitim kurumları ve ticari işletmeler için profesyonel kroki ve plan çizimi hizmeti sunuyoruz.
Hangi Alanlar İçin Kroki Çizimi Yapıyoruz?
Muayenehane Krokisi
Doktor muayenehaneleri için hazırlanan krokilerde; Net kullanım alanları (muayene odası, bekleme alanı, WC) Engelli erişimi Havalandırma ve doğal aydınlatma Minimum metrekare şartları Tıbbi alan – idari alan ayrımı gibi kriterler dikkate alınır. Muayenehane krokileri, İl Sağlık Müdürlüğü ruhsat başvurularında zorunludur ve ölçülendirilmiş plan paftası olarak hazırlanır.
Diş Polikliniği Krokisi
Diş polikliniklerinde; Ünit yerleşim mesafeleri Sterilizasyon alanı Röntgen odası kurşun kaplama planı Atık yönetim alanı Personel alanları gibi teknik detaylar mevzuata uygun işlenmelidir. Bu tür yapılar için çizimler, ilgili sağlık mevzuatına ve yapı kullanım amacına göre detaylandırılır.
Diyetisyen Ofisi Krokisi
Diyetisyen ofislerinde genellikle; Danışan görüşme odası Ölçüm alanı Bekleme alanı WC alanlarının net ölçüleri belirtilir. Ruhsat sürecinde kullanım amacı açıkça işlenmiş plan gereklidir.
Klinik Psikolog Ofisi Krokisi
Psikolog ofislerinde; Ses yalıtımı dikkate alınmış terapi odası Bekleme alanı WC Acil çıkış yönlendirmeleri gibi unsurlar plan üzerinde gösterilir.
Spor Salonu Krokisi
Spor salonlarında; Egzersiz alanı metrekareleri Soyunma odaları Duş ve WC alanları Acil çıkışlar Yangın güvenliği unsurları plan üzerinde açıkça gösterilmelidir. İtfaiye ve belediye onay süreçlerinde planın teknik doğruluğu kritik öneme sahiptir.
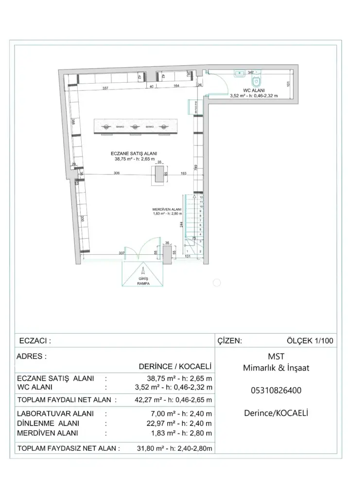
Eczane Krokisi
Eczanelerde; Reçete karşılama alanı İlaç depolama alanı Laboratuvar bölümü Nöbetçi levhası konumu plan üzerinde belirtilir. Eczane krokileri ilgili sağlık mevzuatına uygun hazırlanır ve ruhsat başvurusunda sunulur.
Optik Mağaza Krokisi
Optik işletmelerde; Satış alanı Muayene alanı Depo WC alanları ölçülendirilerek çizilir. İl Sağlık Müdürlüğü başvurularında kullanılmak üzere teknik pafta hazırlanır.
Psikoteknik Merkezi Krokisi
Psikoteknik merkezlerinde; Test odaları Bekleme alanı Değerlendirme odası Kamera yerleşimleri plan üzerinde gösterilmelidir. Bu merkezlerde alan metrekareleri ve oda fonksiyonları mevzuata uygun olmak zorundadır.
Eğitim Kurumu Krokisi
Eğitim kurumlarında; Derslik metrekareleri Öğrenci kapasitesi Acil çıkışlar WC sayısı İdari alanlar ilgili yönetmeliklere uygun olarak hesaplanır ve plan üzerine işlenir.
Kroki ve Plan Çizimi Nasıl Hazırlanır?
Kocaeli’de hazırladığımız kroki ve planlar aşağıdaki aşamalardan geçer:
Yerinde ölçüm ve keşif
Mevcut yapının teknik değerlendirmesi
Yönetmelik kontrolü
Ölçekli plan çizimi (genellikle 1/50 veya 1/100)
Alan metrekare hesapları
Fonksiyonların plan üzerinde işlenmesi
Ruhsata uygun pafta düzeni
Talep edilen kuruma göre formatlama
Hangi Mevzuatlara Göre Çizim Yapıyoruz?
Çizimler hazırlanırken;
3194 sayılı İmar Kanunu
Planlı Alanlar İmar Yönetmeliği
Binaların Yangından Korunması Hakkında Yönetmelik
Sağlık Bakanlığı ilgili yönetmelikleri
İl Milli Eğitim mevzuatı
Belediyelerin yerel uygulama esasları
dikkate alınır.
Her kurumun belge formatı ve teknik beklentisi farklıdır. Bu nedenle hazır şablon yerine, projeye özel teknik çizim yapılmalıdır.
Kroki Çizimi ve Plan Çizimi Neden Profesyonel Hazırlanmalıdır?
Eksik veya hatalı kroki;
Ruhsat sürecinin uzamasına
Evrak iadesine
İlave tadilat zorunluluğuna
Maddi kayba
neden olabilir.
Doğru hazırlanmış bir kroki ise başvuru sürecini hızlandırır ve resmi onay aşamasında sorun yaşanmasını önler.
Kocaeli Kroki Çizimi Hizmeti Almak İçin
Kocaeli merkezli ofisimizden MST Mimarlık & İnşaat Ltd. Şti. olarak;
Tüm Türkiye’ye
Yerinde ölçüm
Mevzuata uygun plan çizimi
Ruhsata esas kroki hazırlama
Gerekli teknik düzenlemeler
Kurum formatına uygun pafta teslimi
hizmetlerini sunuyoruz.
Türkiye’nin tüm illerinde profesyonel kroki ve plan çizimi hizmeti almak için bizimle iletişime geçebilirsiniz.
Ruhsat sürecinizi doğru teknik çizimle güvence altına alın.
